
軽費老人ホームケアハウス桃李
「自然とふれあう住まいで 心豊かな生活を・・・」
加齢に伴い、身体の機能が弱くなり、ひとり暮らしの生活に不安を感じておられる方に入居していただき、食事や入浴、そして生活相談等のサービスを行います。 また、必要に応じ在宅福祉サービスの利用が受けられ、緊急時には、併設の施設の介護士又は看護師が対応します。 プライバシーを重んじ自立した生活を望まれる方のために生活環境を整えた”住まい”です。
施設概要
| 設置主体 | 社会福祉法人 長岡老人福祉協会 |
| 施設名称 | 軽費老人ホーム ケアハウス桃李 |
| 住所 | 〒940-2126 新潟県長岡市西津町4630番地4F |
| 電話・FAX | TEL 0258-47-3113 FAX 0258-47-4114 |
| 開設年月日 | 平成11年10月1日 |
| 施設長 | 島影 尚弘 |
| 職員 | 管理者・生活相談員・栄養士・介護職員 |
| 規模 | 入居 26名 内訳 個室24室(洋室) 夫婦室1室(洋室) |
| 建物・規模等 | 敷 地 :3,410㎡鉄筋コンクリート4階建(4階部分) |
| 延べ面積:1,540㎡ | |
| 居室面積:個室25㎡(約15畳) 夫婦室48㎡(約29畳) | |
| 居室設備:エアコン、洗面所、トイレ、ミニキッチン、収納庫、洗濯パン、緊急呼び出しボタン、ベット、下駄箱、ベランダ | |
| 共有設備:食堂、共同浴場、洗濯、乾燥室、談話コーナー | |
| 苦情対応 | 担当者 平澤 理恵(施設リーダー) |
| 責任者 島影 尚弘(施設長) | |
| 第三者委員 今井 正教 小川 恭男 |
定員
入所26名(個室24室・夫婦部屋1室)
設備

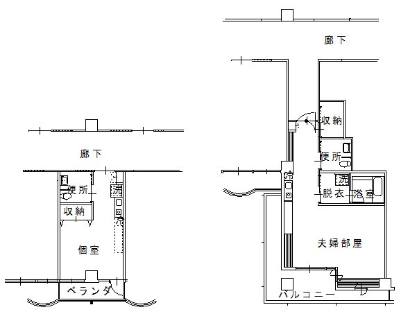
左図:個室(参考) ※図は代表的な部屋の図面です。居室の位置や向きにより、多少異なります。
右図:夫婦部屋 ご夫婦に限らず、親子・ご兄弟など3親等以内の方での同居が可能です。

談話室1

談話室2

食堂

浴室
利用できる方
- 60歳(夫婦の場合どちらかが60歳)以上で、自力で日常生活を営むことが出来,認知症のない方で家庭の事情や年齢・身体的理由で日常生活に不安を感じている方が対象です。
- 介護認定の有無に関係なくご利用いただけます。
- 居住地域に関係なく、お申し込みいただけます。
サービス内容
- 食事
- 入浴
- 生活相談並びに福祉サービスの利用についての相談
- 緊急時の対応
- サークル活動、趣味の会等の援助
- 年間行事
特徴
最大の特徴は、介護老人保健施設桃李園との併設にあります。ケアハウス入居者は病気等の緊急時には、介護老人保健施設看護師等の協力が得られます。 また、通所リハビリテーション、訪問介護ステーション、居宅介護支援事業所が併設されており、介護保険を利用しての様々な福祉サービスがご利用いただけます。
お問い合わせ
- 〒940-2126
- 新潟県長岡市西津町4630番地
- TEL(0258)47-3113 FAX(0258)47-4114
- 対応時間 8:30~19:00
- ※随時、ご見学・ご相談お受けしております。
- ※空室がある際は、体験入居も可能です。
